Eladó családi ház Tatabánya 93 000 000 Ft

Leírás


A Központi Ingatlanközvetítő Iroda kínálatában új építésű családi házak leköthetők.

Tatabányán, Kertváros közkedvelt lakóparkja mellett, kilátással a Gerecsére, új építésű, kifejezetten igényes, megbízható kivitelezőtől, kulcsrakész családi házakat kínálunk eladásra.

Az ingatlanok, korszerű, értékálló, magas műszaki tartalommal, magas színvonalú építőanyagokból, modern és energiatakarékos gépészeti és villamossági technológiával készülnek, modern minden igényt kielégítő belső elrendezéssel teszik komfortossá az ide költözők mindennapjait.

Az energiatakarékos hőszivattyús fűtésrendszer padlófűtéses hőleadással, fan coil rendszer előkészítéssel kedvező fenntartást eredményez. Nyílászárói megfelelnek a legújabb előírásoknak.

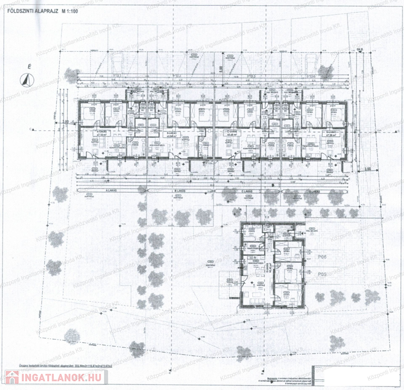
Összesen 5 db, 67 nm - 69 nm méretű otthonok kerülnek kialakításra elő és hátsókerttel és 1 db parkolóval.

„A” lakás: 69 m2, saját telek területe: 503 m2, az ingatlan ára: 66.900.000.- Ft - ELKELT

„B” lakás: 69 m2, saját telek területe: 159,22 m2, az ingatlan ára: 62.700.000.- Ft - ELKELT

„C” lakás: 69 m2, saját telek területe: 130,27 m2, az ingatlan ára: 62.600.000.- Ft - ELKELT

„D” lakás: 67 m2, saját telek területe: 151,52 m2, az ingatlan ára: 63.900.000.- Ft - ELKELT

„E” lakás: 90 m2, saját telek területe: 582,17 m2, az ingatlan ára: 93.000.000.- Ft

Az „A” – „D” ingatlanok kialakítása: előtér, közlekedő, 2 szoba + nappali, konyha, fürdőszoba WC-vel, WC kézmosóval, háztartási helyiség, előkert, hátsókert, parkoló.

Az  „E” ingatlan kialakítása: előtér, közlekedő, 3 szoba + nappali, konyha, fürdőszoba WC-vel, WC kézmosóval, háztartási helyiség, előkert, hátsókert, parkoló.

 

Az ingatlanok kulcsrakészen kerülnek átadásra, az árak a konyhabútort nem tartalmazzák.

Opcionálisan + 1 db parkoló kialakítható.



Az ingatlanok várható átadása 2025. első negyedéve.

További információkért, részletes műszaki tartalomért, forduljon irodánkhoz bizalommal!

 

KÖZPONTI INGATLANKÖZVETÍTŐ IRODA

ügyvédi háttérrel, energetikai tanúsító,

független banki ügyintéző ajánlásával

SEGÍT, HOGY ELKELJEN RÉGI / MEGLEGYEN ÚJ OTTHONA

Családi ház részletei

Ár: 93 000 000 Ft
Méret: 90 négyzetméter
Azonosító: 11468331
Irodai azonosító: 176701233
Telek: 582 négyzetméter
Ingatlan állapota: Átlagos
Jelleg: családi ház
Építőanyag: Tégla
Komfort fokozat: Összkomfort
Kor: Új építésű
Egész szobák: 3